10 Planos de casas de 1, 2 y 3 Dormitorios
A continuación una serie de planos de casas que sin duda te servirán de inspiración para tener en cuenta en tus planos de casas o tu plano de casa que estés pensando la distribución de los espacios interiores. En los siguientes 10 planos de casas tenemos una serie de ideas de distribuciones óptimas, desde planos de casas de 1 solo dormitorio, pasando por planos de casas de 2 y 3 dormitorios.

Veamos estos 10 planos de casas para ideas.
Analicemos estos 10 diseños de planos de casas con distribución simple y práctica que le pueden servir para tomar ideas de lo que usted realmente quiere para el plano de casa que tiene en mente.
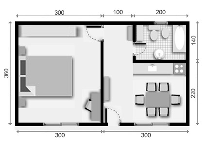
—> Plano de casa de 1 dormitorio.

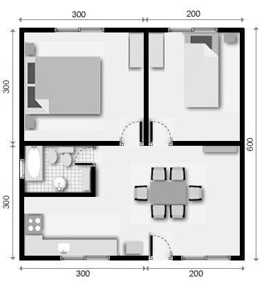
—> Planos de casas de 2 dormitorios.





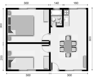
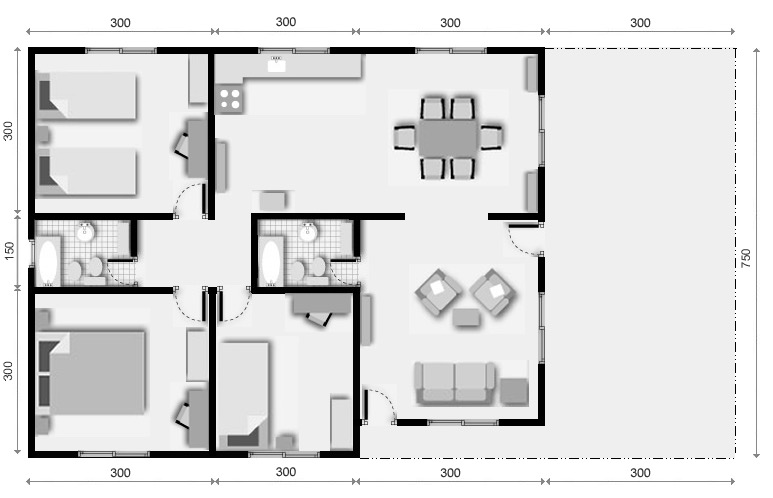
—> Planos de casas de 3 dormitorios.




¿Qué les parecen estos planos de casas?
Son varios los diseños, las ideas y la imaginación es el límite, así que son bastante creativos pueden hacer un buen diseño o plano de casa.
No olvide dejar su comentario sobre estos planos de casas más abajo en la caja de comentarios. Saludos.



Deja tu comentario
¡Gracias por tu comentario! Se publicará una vez sea revisado por el equipo.
Error al enviar el comentario.