Descargar plano de casa social 70m2 y 2 pisos
Si usted necesita un plano de casa social, bajo costo pero para una familia numerosa, este es el plano de casa que necesita.
El siguiente plano de casa es un plano de vivienda social desarrollada y pensada para ser habitada por una familia numerosa.
Considerando que una familia de 5 integrantes pueden vivir cómodamente en esta vivienda social, usted puede ver el plano a continuación.

Plano de casa social de 70m2.
Aproximadamente, esta vivienda cuenta con un total de 70 metros cuadrados habitables.
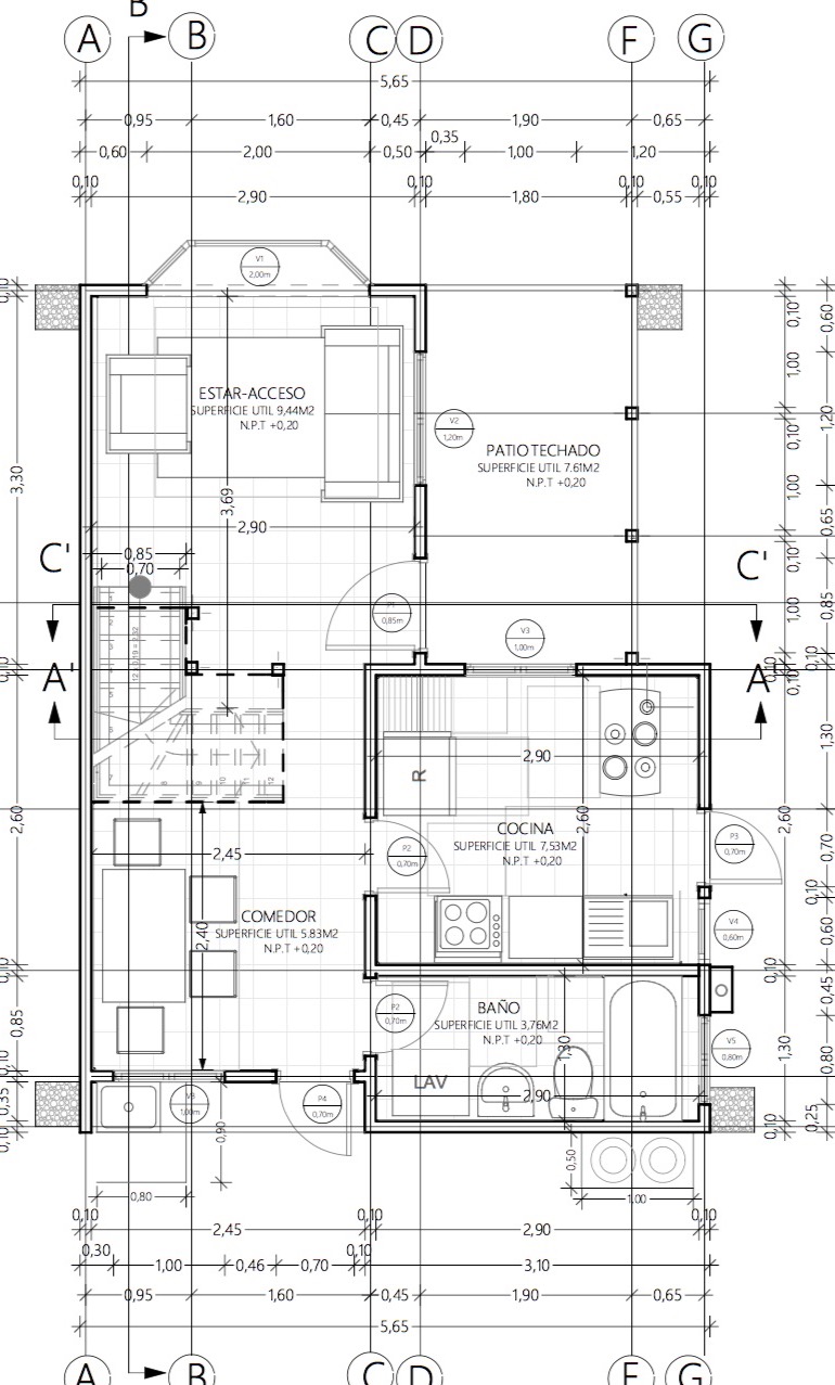
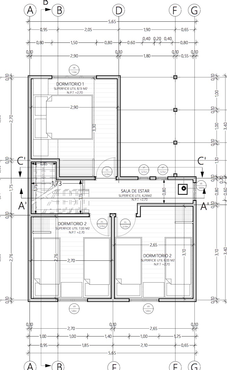
Los cuales están distribuidos de la siguiente manera. Primer piso: zonas comunes, segundo piso: dormitorios.
Es un diseño o plano de casa acogedor, cuenta con 3 dormitorios amplios y cómodos, espacios comunes bien pensados y distribuidos.
Aquí podemos ver el plano del primer piso:

Y en esta captura podemos ver el segundo piso:

Descargar plano de vivienda social 70m2.
¿Qué le parece este plano de casa?
Recuerde que más abajo hay una caja de comentarios donde puede dejar su opinión al respecto si usted gusta.
Gracias por visitar verplanos.com, nos leemos en el próximo artículo! 😉



Deja tu comentario
¡Gracias por tu comentario! Se publicará una vez sea revisado por el equipo.
Error al enviar el comentario.