Plano de casa económica de 9 x 8 metros con 2 dormitorios

Anuncios

En esta ocasión, me gustaría compartir con usted el siguiente plano de casa, es un plano económico, muy bonito.

Si usted está buscando ideas para diseñar su casa propia y necesita planos de casas, quizás este plano de casa económico le pueda servir.

Se trata de un bonito, funcional y bien distribuido plano de casa que le puede servir de inspiración para su propio diseño de casa.

Descargar plano de casa económica para descargar en AutoCAD con medidas gratis
Descargar plano de casa económica para descargar en AutoCAD con medidas gratis

¡Vamos a ver este plano de casa a continuación!

🏡 Plano de casa de 9 x 8 metros.

En este video usted puede ver el plano y escuchar algunos comentarios explicando este diseño. ¡No se pierda el video!


✚ Nota: No olvides suscribirte al canal para recibir todos los planos de casas que voy publicando. 😉

📚 Otros aspectos y detalles de este plano de casa.

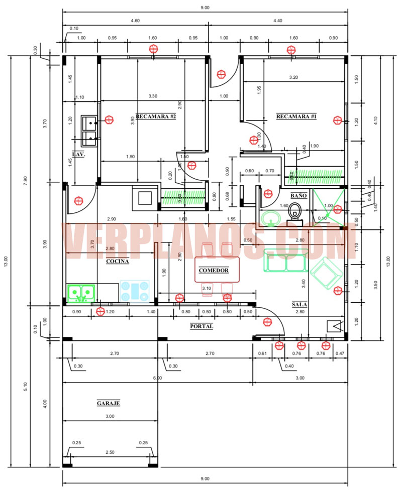
Este plano de casa aproximadamente tiene algo más de 70 metros cuadrados habitables.

Sus ambientes que lo componen son, por ejemplo, un pórtico o galería de acceso, sala de estar y comedor en mismo ambiente.

Cocina separada pero sin puerta que da a un patio trasero de lavadero.

En total, este plano de casa economico, cuenta con dos dormitorios y un cuarto de baño.

🧐 Vista previa de su planta y fachada.

En estas imágenes a continuación usted puede ver algunas vistas previas de este plano de casa.

Por ejemplo, en esta imagen podemos ver una vista en planta de este diseño.
Vista previa plano de casa económica

Y en estas fotografías usted puede ver algunas vistas previas de su fachada.

Vista previa fachada 1

Vista previa fachada 2

Como podemos ver, se trata de un plano de casa bastante acogedor, ¿Cierto?

⬇︎ Descargar este plano de casa.

Para descargar este plano de casa usted lo puede hacer desde el siguiente enlace.¡Muchas gracias! 😊

El formato es AutoCAD 2010 y el archivo tiene extensión .DWG

ℹ️ ¿Qué opinas o qué le parece este plano de casa?

Como siempre, le recuerdo que más abajo en la caja de comentarios puede dejar su opinión sobre este plano de casa.

¡Muchas gracias por visitar verplanos.com!

Anuncios
verplanos.com Por verplanos.com

¿Te resultó útil este plano? ¡Compártelo!

Podría interesarte también

1 Comentario

MARTIN
MARTIN 13 jun 2020, 09:02

Muy buenos planos

Deja tu comentario

Tu email no será publicado. Los campos con * son obligatorios.