Planos de casa social de 1 piso y 3 dormitorios con medidas
¡Hola! Quería compartir con ustedes los siguientes planos de casa social que está, en diseño, muy optimizada.
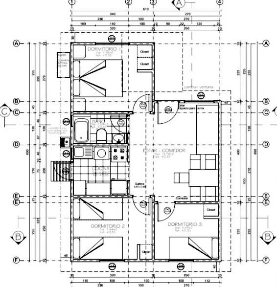
Se trata de una vivienda que en su plano tiene unos 48 metros cuadrados habitables.
En su distribución, podemos ver en su vista en planta, que cuenta con tres dormitorios.
Se privilegia el compartir en familia y se separa: dormitorio principal, de los otros dos, teniendo en total 3 dormitorios.

Planos de casa social.
Este plano usted lo puede descargar siguiendo este enlace: Descargar.
Allí puede bajar algunas láminas de estos planos de casa social que seguro le van a servir para inspirar su propio diseño.
En el plano podemos ver que se optimiza el diseño y disposición del cuarto de baño y cocina, haciendo coincidir el centro de instalaciones sanitarias y las hidráulicas.
En esta captura podemos ver una vista previa de su fachada.

Esto es conveniente ya que ahorra en materiales y se optimiza el uso de instaladores sanitarios.
Aquí una vista previa de su diseño:

Si usted quiere más detalles de estos planos de casa social, visite este enlace: «Descargar plano de casa social de 48m2 con 3 dormitorios»
¿Qué le parece este plano de casa?
Es sin duda un plano súper pequeño, pero por lo mismo con características sociales y económicas. Si usted gusta, puede dejar su opinión más abajo en la caja de comentarios.
¡Muchas gracias por visitar verplanos.com! 😉



Deja tu comentario
¡Gracias por tu comentario! Se publicará una vez sea revisado por el equipo.
Error al enviar el comentario.