Plano de casa pareada de 2 pisos con 2 dormitorios de 58m2
¡Hola! amigos y amigas de verplanos.com, para hoy les traigo un plano de casa pareada de 2 pisos con 2 dormitorios de 58m2.
Se trata de un plano de casa bastante simple, pero eficiente, que cuenta con todo lo necesario para vivir cómodamente.
Se trata de una vivienda social diseñada para ser construida de forma simultánea o pareada.
Una vivienda de bajo estándar económico, pero no por eso menos eficiente y práctica que otras.

Plano de casa o vivienda social pareada de 58m2.
El plano está pensado para ser construido de forma pareada en dos niveles.
Tiene un total aproximado de 58 metros cuadrados, con un total de dos dormitorios.
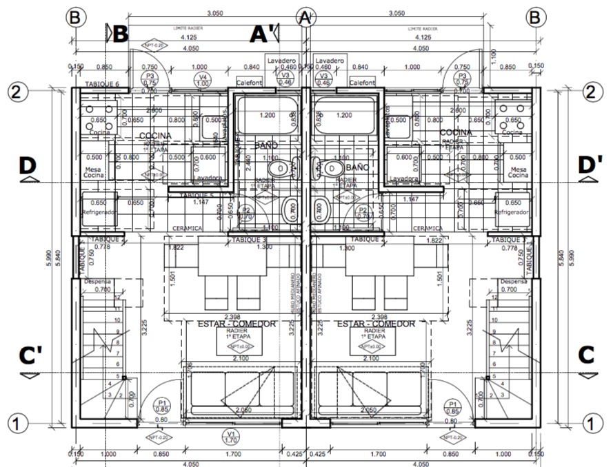
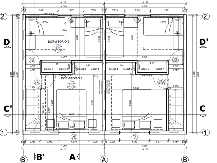
Así lo podemos ver en las siguientes imágenes, donde podemos ver la distribución en los dos niveles.
No se logra apreciar muy bien, ya que el diseño viene muy detallado en sus medidas y estructura.
Pero en el archivo podrá usted ver en detalle.
Plano del primero piso:

Plano del segundo piso:

Descargar este plano de casa social.
Para descargar este plano de casa puede hacerlo desde el siguiente enlace: [sociallocker]Descargar.[/sociallocker]
¿Qué le parece este plano de casa?
Recuerde que si usted quiere, puede dejar su opinión más abajo en la caja de comentarios, gracias por visitar verplanos.com! nos leemos en el próximo artículo 😉



Deja tu comentario
¡Gracias por tu comentario! Se publicará una vez sea revisado por el equipo.
Error al enviar el comentario.