Plano de casa social con 3 habitaciones y 54m2
🏘️ El desarrollo urbano de muchas ciudades depende en gran parte de la construcción de viviendas sociales, accesibles, funcionales y bien diseñadas.
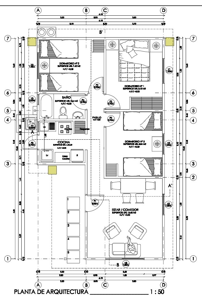
En esta ocasión le presentamos un plano de casa social de 54 m², ideal para familias que buscan una solución habitacional económica pero con todo lo necesario para vivir cómodamente.
Este diseño es sencillo, práctico y puede descargarse gratis en formato PDF para utilizarlo como inspiración o referencia en un proyecto personal.

🏠 Plano de casa social de 54 m²
Este plano de vivienda de un piso cuenta con una distribución eficiente en un espacio reducido, sin sacrificar comodidad:
- 🛏️ 3 dormitorios, pensados para una familia
- 🍽️ Cocina, comedor y sala de estar integrados
- 🚪 Circulación funcional y diseño compacto
Su enfoque es completamente práctico: una casa social acogedora y económica, perfecta para adaptarse a programas habitacionales o terrenos de menor tamaño.

📥 Descargar plano de casa en PDF
Puede descargar el expediente completo de este proyecto en formato PDF desde el siguiente enlace. Incluye todos los detalles necesarios para analizar o adaptar el diseño:
💬 ¿Qué le parece este plano de casa?
Nos encantaría saber su opinión. ¿Este diseño cumple con lo que busca en una vivienda económica de un piso? ¿Le gustaría ver más modelos similares?
Déjenos su comentario más abajo 📝. ¡Gracias por visitar verplanos.com! Nos leemos en el próximo artículo. 😊



Deja tu comentario
¡Gracias por tu comentario! Se publicará una vez sea revisado por el equipo.
Error al enviar el comentario.