Plano de casa de Campo con medidas en DWG y PDF
¡Hola! En este artículo me gustaría compartir con usted una vivienda bastante bonita y hermosa.
Se trata de un diseño con arquitectura tradicional, bastante acogedora que podremos ver en detalle a continuación.
Tiene unas medidas generales de 12 metros de frente por 7 metros de largo.

Pero mejor, ¡Vamos a ver más detalles de este plano de casa a continuación!.
🏡 Plano de casa con medidas de 1 piso.
Enseguida, en este video usted podrá ver un resumen de este plano de casa además de escuchar un comentario. ¡No se lo pierda!
✚ Nota I: No olvides suscribirte al canal para recibir todos los planos de casas que voy publicando. 😉
✚ Nota II: Recuerde que es un plano de casa orientativo, si necesita construirlo, contacte con un especialista. ✅
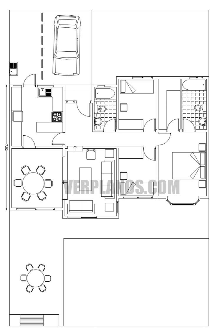
📝 Más detalles de este plano de casa.
En sí, es un plano de casa con arquitectura clásica y tradicional, pero su distribución me parece súper interesante.
Cuenta en total con tres dormitorios o habitaciones, donde el principal de estos dormitorios es en suite y con vestidor o «Walking closet».
Además me pareció buen idea agregar una piscina en la parte trasera de la casa y una terraza para disfrutar al aire libre.
📸 Vista previa de su fachada y planta.
En esta imagen usted puede ver una vista previa de su fachada.

Y a continuación, por ejemplo, puede usted tener una vista previa de su vista en planta de este plano de casa.

¿Qué le parece este diseño de vivienda? 🤔
📚 Descargar este plano.
😉 Para descargar este plano de casa con medidas y en autocad lo puede hacer desde el siguiente enlace.
El formato es AutoCAD 2007 y el archivo tiene extensión .DWG
También está en PDF Para que usted pueda hacer una vista previa de este plano de casa.
💡 ¿Qué le parece este plano de casa?
Como siempre, le recuerdo que más abajo en la caja de comentarios puede dejar su opinión sobre este plano de casa.
¡Muchas gracias por visitar verplanos.com! 😉




Deja tu comentario
¡Gracias por tu comentario! Se publicará una vez sea revisado por el equipo.
Error al enviar el comentario.