Planos de casa de 3 niveles y 3 dormitorios
🏗️ ¿Estás buscando un plano de casa de 3 niveles ideal para terrenos con desnivel o zonas costeras? Este diseño moderno y funcional distribuye sus espacios en tres pisos, integrando áreas comunes, estacionamiento y dormitorios de manera eficiente.
Con un enfoque arquitectónico pensado para aprovechar el terreno, este plano de casa en formato PDF es perfecto para inspirarte o como base editable para un proyecto real. ¡Descárgalo gratis más abajo!

🎥 Video del plano: casa de 3 pisos
En este video puedes conocer más sobre este interesante diseño, que destaca por su distribución vertical y aprovechamiento del espacio:
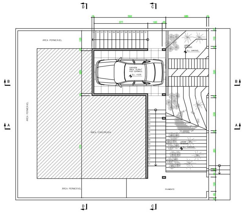
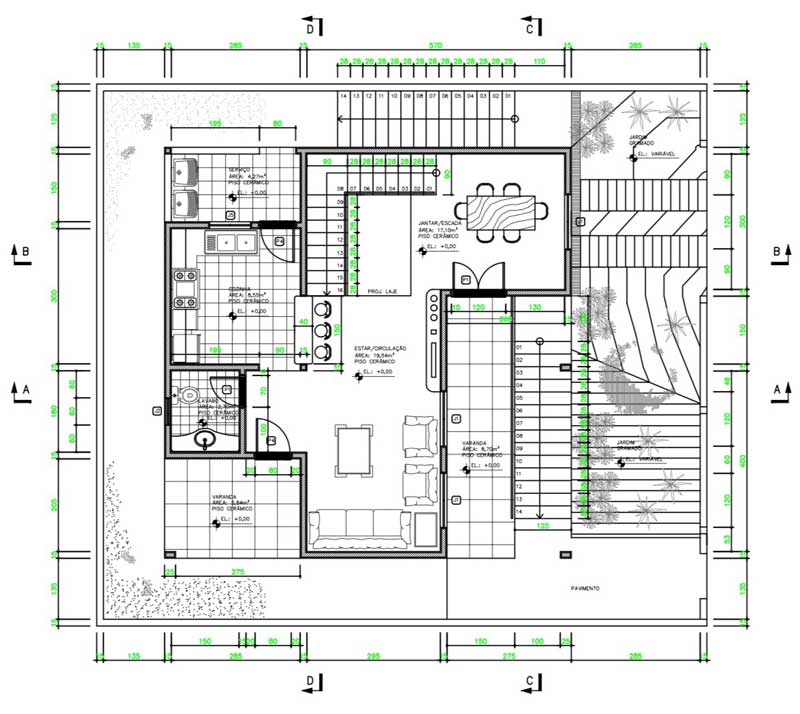
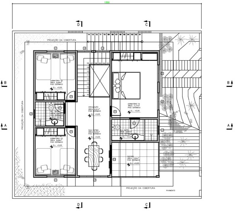
📐 Distribución general por niveles
Este plano de casa moderna está organizado en tres niveles, con funciones específicas en cada uno:
- 🔻 Nivel 0 (primer nivel): estacionamiento, jardines exteriores y escaleras de acceso
- 🏡 Nivel 1 (segundo nivel): espacios comunes amplios como sala, comedor y cocina
- 🛏️ Nivel 2 (tercer nivel): 3 dormitorios, distribuidos de forma privada con acceso a baños y vista a la terraza
💡 Este tipo de vivienda es ideal para zonas con relieve, ya que su estructura se adapta perfectamente a terrenos inclinados o costeros.
🖼️ Vistas previas de fachadas y plantas




📥 Descargar el plano en PDF
¿Te gustaría utilizar este diseño como inspiración para tu casa? Puedes descargarlo gratis en formato PDF desde el botón siguiente:
💬 ¿Qué opinas de este diseño?
¿Te parece útil este tipo de plano para un terreno con pendiente o zona costera? ¿Agregarías algún detalle más?
Deja tu comentario más abajo, ¡nos encantaría leerte! ✍️
Gracias por visitar verplanos.com. ¡Nos vemos en el próximo artículo! 🌟



Deja tu comentario
¡Gracias por tu comentario! Se publicará una vez sea revisado por el equipo.
Error al enviar el comentario.