Planos de casas de un piso ¡7 Diseños de viviendas muy bonitos!
Los Planos de casas de un piso son sin duda diseños de planos de viviendas que cumplen las necesidades de muchas familias y que usted debe usar para sus proyectos.
Porque son planos y diseños sencillas, planos de casas prefabricadas o casas unifamiliares gratis para que usted se inspire.
Es por eso que quiero compartir con usted estos tres planos de casas gratuitos, que usted puede ver y tomar como idea o inspiración para su propio proyecto de unos planos de casas y así tener su vivienda propia, que es el deseo de muchas personas.

Le vana servir de inspiración, son 7 diseños de casas habitacionales de un piso, con algunas medidas, así que usted tendrá unas casas de un piso y sus planos.
Hace algunos días atrás, ya comentábamos en el blog unos 10 diseños de planos de casas de 1 piso, muy bonitas, con sus planos y medidas. Los puede ver aquí: «10 Planos de casas de 1 piso bonitas con medidas»
Planos de casas de un piso con medidas
Usted debe ver estos siete planos de casas que quiero compartir con usted en este artículo.
Planos de casa de 1 piso moderna (150m2)
El primer diseño de casa que quiero compartir con usted, es el siguiente. Se trata de una moderna casa de 1 piso con un diseño innovador y que usted puede descargar su plano y fachada desde un archivo DWG.

Si bien es un plano de casa que usted puede descargar, también le tengo que comentar que es una vivienda bastante grande, alcanza aproximadamente unos 150 m2 habitables, pero considerando que es un formato digital, usted puede tomarla como base y modificar sus medidas.
Este es un video de referencia que muestra planos de casa arquitectónicos, que le he estado comentando.
Ya conversamos sobre este plano de casa antes, usted puede visitar este enlace donde conocerá más detalles y también le permitirá descargar el archivo.
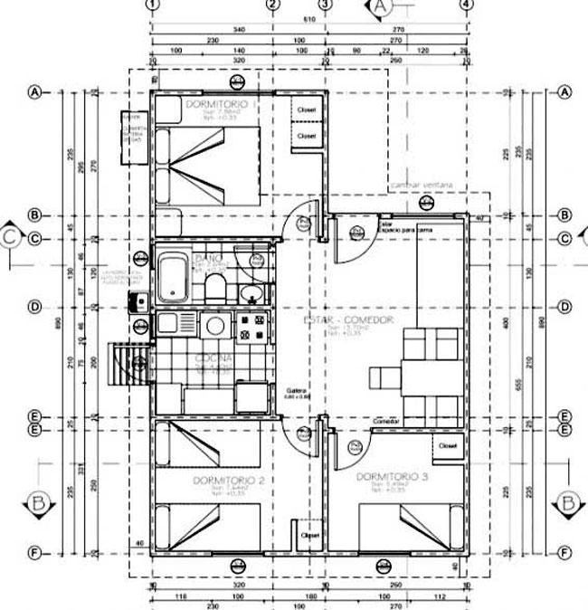
Planos de casa de 1 piso de carácter social (48m2)
Dentro de las soluciones de planos de casas residenciales encontrará, comúnmente la necesidad de satisfacer viviendas de carácter social como un derecho humano.

Pero que sean casas o viviendas sociales, no quiere decir que estas tengan que ser «indignas» como se podría pensar prejuiciosamente, por ejemplo, el siguiente plano, es un diseño que cuenta con un diseño social, pero su plano de casa nos muestra cómo es un diseño súper confortable, bien pensado y planeado para albergar una familia de hasta 5 integrantes.

Quizás podemos decir que este diseño no es lo suficientemente grande, pero si hay que destacar lo eficiente que es al ocupar muy bien el espacio construido. Además de tener un estilo de arquitectura clásico, tiene una planta simple y fácil, pero que es sin duda un plano de casa completo para la residencia de una familia completa.
Para acceder a la descarga y más detalles de esta vivienda social, usted puede visitar este enlace: «Planos de casa social de 1 piso y 3 dormitorios con medidas».
Planos de casa moderna de 1 piso (69m2)
Este diseño de casa, es un modelo de vivienda pensado especialmente para considerar la fluidez y comodidad de las personas que viven en ella.
Porque, como se puede ver en su diseño de plano, esta vivienda cuenta con un plano de casa bastante bien logrado en cuanto a su distribución de espacios interiores.
Pero primero, veamos su fachada, la que le genera el toque de vivienda moderno, confortable, cómodo, acogedor, cálido de hogar, a mi en lo personal me encanta este plano habitacional de arquitectura.

¿Por qué digo esto? Pues bien, porque si uno se pone a mirar con atención, los espacios están dispuestos de tal forma que todo de con algo que tiene relación, veamos este plano de casa moderno de 1 piso, en esta imágenes del plano de esta casa habitación.

Lo único lamentable de este plano de casa es que no cuenta con sus medidas, pero esto es mejor, ya que nos da la posibilidad de dárselas nosotros mismos.
Si usted aprecia este diseño, podrá darse cuenta que el grupo de dormitorios está en un sector del plano, dispuesto de tal forma que no moleste a los demás así también con los otros. ¿Qué le parece? Para mayores detalles de este diseño de casa habitacional, visite: «Plano de Casa de 1 piso y 3 dormitorios Moderna».
Diseño habitacional grande y moderno (170m2)
Para variar, el siguiente plano podría ser considerado un diseño de alto estándar o «lujoso», considerando que cuenta con un área aproximada habitable de 170 metros cuadrados habitables.

Lujosa o no, lo cierto es que esta vivienda es una muy grande en extensión y un diseño pensado para ser construido en un gran terreno, con harto espacio.
Podemos ver que su fachada es clásica, pero cuidada, tiene un estilo especial para ser construida en madera ¿Qué opina usted? A mi parecer sí, quedaría muy acogedora construida en materialidad de madera.
Veamos el plano de esta casa, que está súper grande.

Como puede ver el diseño de esta casa es súper grande, poco se le alcanzan a ver sus medidas, pero lo mejor de esto, es que igual que el anterior, las medidas se las podemos dar nosotros.
Para más información de este diseño, visite: siguiente enlace.
Plano de cabaña de 1 piso y 2 dormitorios (95m2)
La siguiente es una casa, pero su estilo es bastante típico de una casa rural, por eso le he titulado «cabaña». Me parece una simple casa para descansar.
Simplemente, un diseño muy amable a la vista, un plano típico americano, en su arquitectura es muy de los estados unidos, por su cubierta y el estilo en su fachada.

Sus metros cuadrados construidos, son de más o menos 94 ~ 95 metros cuadrados habitables. Podemos ver que es un simple y fácil plano de casa, de entender y ejecutar, una vivienda rústica, de campo, típica y cálida en su diseño.
Para mi parecer, es un plano hermoso de casa de campo o cabaña. Veamos Online este plano de casa a continuación.

¿Coincide conmigo?, no sé, pero es un plano de casa logrado, con estilo cálido, fluido, confortable. ¿Qué le parece a usted?
Plano de casa de 1 piso en Autocad
Y si lo que usted quiere es descargar un plano de vivienda unifamiliar de un piso en formato «Autocad» (DWG) entonces este plano le servirá.
Se trata de un diseño de vivienda unifamiliar, pensada en un sólo nivel, el cual, podría ser un diseño de casa prefabricada, este plano de vivienda está especial para ser económico.
Su superficie edificada y habitable alcanza aproximadamente los 63 metros cuadrados, distribuidos de esta forma:
- Dos dormitorios
- Un cuarto de baño.
- Ambiente para cocina.
- Sala de estar o living, con el comedor.
Aquí podemos ver el plano de esta casa:

Y usted lo puede descargar desde este enlace.
Además puede tener más información sobre este plano al visitar este artículo: «Descargar planos de casa de 1 piso 2 dormitorios y 64m2».
Plano de vivienda prefabricada sobre palafitos
Y ya para terminar con estos planos de viviendas unifamiliares, le quiero mostrar uno que usted debe considerar.
Es de un piso que quería compartir y comentar junto a usted, para que tome la decisión de elegir alguno para su inspiración.
Le traigo este, que es un diseño de casa de un piso montada o fundada sobre palafitos y que se trata de un diseño prefabricado.
Esta es su fachada:

Su estructura está desarrollada en madera y puedes ver que su arquitectura no es muy elaborada.
Pero es muy funcional para el desarrollo de la vida cómodamente.
Veamos el plano, más bien lo siguiente es un esquema de sus ambientes.

Puede tener más información sobre este planos de casa, visite: «Planos de casa de 80 m2 con 3 dormitorios y 1 piso».
¿Qué opina sobre estos planos?
¿Qué plano le gustó?
¿Qué opina sobre estos diseños?
Más abajo debe dejar su opinión por si quiere, en la caja de comentarios.



Deja tu comentario
¡Gracias por tu comentario! Se publicará una vez sea revisado por el equipo.
Error al enviar el comentario.