Planos de casas social económica con medidas (DWG / PDF)
¡Hola! En este artículo me gustaría compartir con usted un plano de casa sencilla y eficiente.
Se trata de un plano de casa con medidas precisas para ser una vivienda cómoda y económica.

¿Qué le parece si vamos a ver más detalles de este plano de casa a continuación? ¡Vamos a ver!
🏡 Planos de casa económica.
El siguiente video muestra un resumen de este plano de casa y además un comentario al respecto. ¡No se lo pierda!
✚ Nota I: No olvides suscribirte al canal para recibir todos los planos de casas que voy publicando. 😉
✚ Nota II: Recuerde que es un plano de casa orientativo, si necesita construirlo, contacte con un especialista. ✅
📝 Otros detalles de este plano.
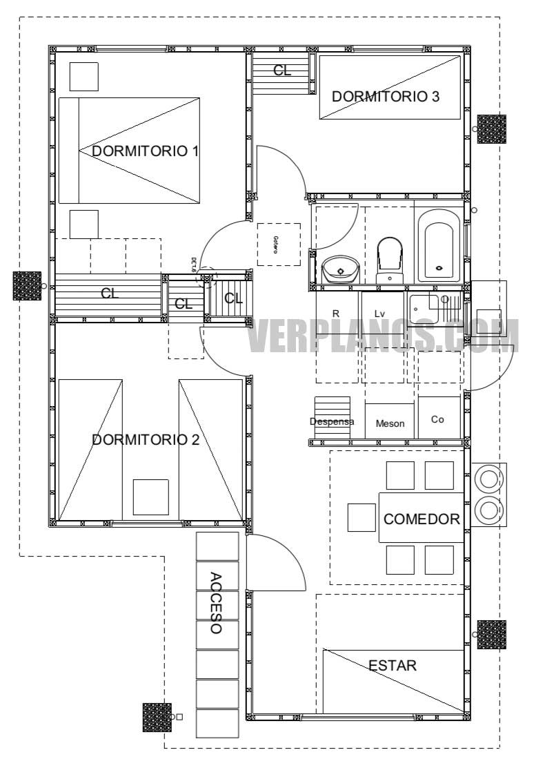
Sus medidas generales son de 6 metros de frente por 9 ~ 10 metros de largo, aproximadamente.
Cuenta con tres dormitorios, un cuarto de baño, cocina, lavadero exterior, sala y comedor.
📸 Vista previa de su fachada y plano.
En esta imagen podemos ver una vista previa de su fachada.

Y en esta otra fotografía podemos ver una vista previa de su planta.

¿Qué le parece? Es súper simple, sencilla, eficiente, cómoda y bonita.
📚 Descargar este plano.
😉 Para descargar este plano de casa con medidas y en autocad lo puede hacer desde el siguiente enlace.
El formato es AutoCAD 2007 y el archivo tiene extensión .DWG
También está en PDF Para que usted pueda hacer una vista previa de este plano de casa.
💡 ¿Qué le parece este plano de casa?
Como siempre, le recuerdo que más abajo en la caja de comentarios puede dejar su opinión sobre este plano de casa.
¡Muchas gracias por visitar verplanos.com! 😉




Deja tu comentario
¡Gracias por tu comentario! Se publicará una vez sea revisado por el equipo.
Error al enviar el comentario.